Туалет, как бы это не звучало странно, но одна из самых важных построек на дачном участке, ведь сейчас в деревнях слишком в кустики не походишь. И, даже если вы не строитель, а в дачном доме канализации нет, в туалет ходить куда-то нужно. Давайте поразмышляем как это сделать?
Для начала решаем где поставить туалет. Основополагающими факторами для этого будут вот какие. Нельзя ставить туалет ближе, чем в 30 метрах от колодца или другого источника воды. Кстати, колодец должен стоять выше туалета. Хоть вам и лень/холодно/страшно бегать далеко до туалета, его не стоит возводить ближе, чем в 5 метрах от дома, при этом от границ соседского забора/участка отступите хотя бы метр.
Чтобы не восхищаться «благовониями» вспомните о розе ветров, дабы все ветра не несли вам запахи в дом и при поедании шашлыков на веранде дачи не чуять аромат туалета.
Скорее всего, туалет будет с выгребной ямой. Сразу позаботьтесь о том, что будет подъезжать к ней машина. Если вы решились на выгребную яму, узнайте какой уровень подземных вод в округе. Если высокий — это плохая идея.
Выбор туалета. Как уже говорилось, классический деревенский туалет с выгребной ямой может быть противопоказан вам. Выберем несколько типов туалетов, которые можно возвести в кротчайшие сроки. Это классический деревенский туалет, который мы будем рассматривать, а если он не подходит вам, то подумайте над постройкой биотуалета и, носящим странное для русскоговорящих название, люфт-клозетом.
Как построить стандартный туалет с выгребной ямой
Этот туалет знают все и хоть раз в таком были. Технология проста: вырываете яму в 1,5-2 метра квадратной формы. Яму желательно укрепить бетонными кольцами досками или кирпичом. Некоторые кладут в вырытую яму старую бочку или еще что. Дно можно посыпать щебнем. Главное сделать яму на совесть, чтобы потом не пить воду в колодце с загрязненностью. Потом эту яму нужно будет периодически вычищать вручную или с помощью специальной машины. А можно просто засыпать туалет землей и сделать так, чтобы он переехал.
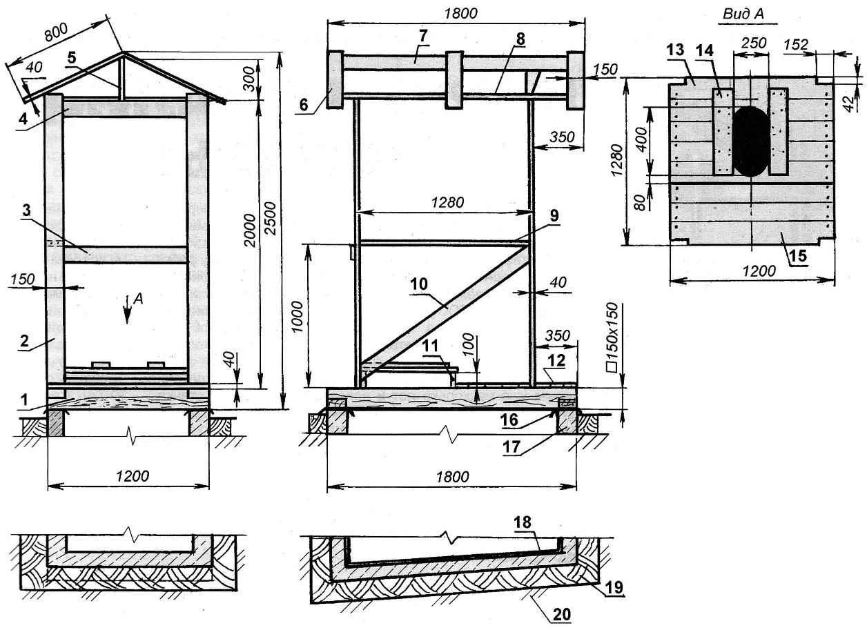
Делаем четыре каменных столбца, на которые будет опираться коробка- туалетный домик. Т.к., домик из дерева, на землю его не ставить – сгниет. Столбики, обычно, изолируют рубероидом поверх. Рама будущего туалета 100х100. Ее нужно покрыть краской от гниения и пропитать грунтовкой и положить на грунт – опору из тех самых кирпичиков. Дальше ставим сверху четыре стойки по углам. Учтите, что крыша будет с наклоном, а значит передние должны быть длиннее (выше) задних. На готовый каркас будем прибивать бруски. Непосредственно над ямой необходимо установить каркас сидения, который тоже будем оббивать брусками. На верх нужно положить балки крыши, которые застелем слоем рубероида и шифером. Самые крепкие доски берите на пол, ведь они должны выдержать вас.
Не забудьте провести освещение в туалет. Внутри можно обить еще каким-либо материалом, утеплить для зимних посиделок. А вот снаружи можно покрасить.






































