Каждый человек мечтает построить свой личный дом за городом, где нет загазованного мегаполиса и суеты, ведь на природе отдыхать лучше всего. На данный момент стало очень популярно возводить дома, которые могут быть с разного строительного материала. Многие стремятся произвести постройку дома с помощью строительной бригады, которые способны сделать все необходимое за короткий период времени, но при этом такая работа будет стоить больших денег.
Исходя из этого, многие сделали вывод, чтобы не тратить свои личные денежные средства на работников, то выгоднее всего построить дом своими руками. Стоит отметить важный факт, в котором предусмотрено создание проекта и чертежа дома, что является не совсем простым. Необходимо воспользоваться некоторыми компаниями и специалистами по данному вопросу, которые также могут взять определенную плату за планирование будущего дома. Поэтому чтобы вы не сильно тратились, то в данной статье мы поможем реализовать вашу мечту.
Для начала необходимо принять к сведению некоторые рекомендации, которые помогут вам воплотить в реальность вашу идею. В первую очередь, перед тем как узнать, что такое проекты коттеджей нужно тщательно продумать свои идеи по произведению дома, что должно быть на участке возле дома, какой дом должен быть, какими дополнительными постройками должны быть, которые будут дополнять основную площадь земли. А также учитывая элементы, которые связаны с ландшафтным дизайном.
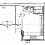
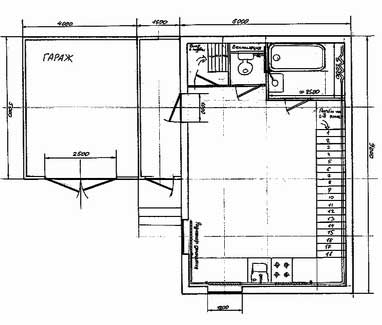
Первым этапом будет проект и составление чертежа дома. Проект необходим для того, чтобы все ваши идеи можно было зафиксировать на бумаге, который будет играть в роли основного плана, где можно будет где-то поправить или изменить. Конечно, с момента создания чертежа это будет как черновой вариант, который станет уже основным после полного составления плана для постройки вашего дома.
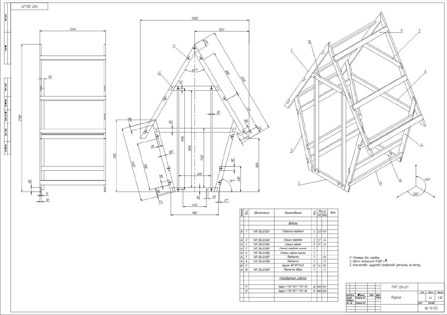
Необходимо учитывать расходные стройматериалы, их качество и характеристики, а также их взаимодействие между другими материалами. Далее нужно правильно определить толщину материала для стропил, что бы это узнать, то нужно знать наклон кровли, климатические особенности региона, тип кровельного покрытия.























