Оглавление:
- 1 Из газового баллона
- 2 Из молочной фляги
- 3 Установка
- 4 Видео
- 5 Чертежи
Печь-буржуйку для обогрева помещений начали широко использовать еще лет сто назад. После того как появилось центральное отопление, металлические буржуйки перекочевали из квартир и домов на дачи и в гаражи.
Одним из самых существенных недостатков буржуйки, можно считать условия ее теплоотдачи. Ее тепло ничем не аккумулируется и почти все уходит через трубу наружу. Такая печь эффективна только вблизи места установки и только во время горения топлива.
Для того чтобы повысить эффективность работы буржуйки, нужно использовать теряемое тепло. Максимальные потери происходят через дымоход, который при работающей буржуйке раскаляется.
Дымоход можно превратить в нагревательный элемент, изменив его прямую форму на ступенчатую, благодаря чему увеличивается площадь теплоотдачи.
В данной статье мы расскажем как сделать буржуйку для гаража своими руками из различных материалов. Самый простой выход – это взять за основу старый газовый баллон (в котором развозили газ пропан). За неимением баллона можно использовать 40-литровую молочную флягу или любую другую металлическую заготовку.
Из газового баллона

Начинать работы нужно с чертежа, но не на бумаге, а на самом баллоне. Маркером размечается будущая дверца топки и поддувало. Дверца должна быть расположена по центру баллона, а поддувало – в его нижней части. Расстояние между ними выдерживается не более 10 см, и по середине проводится замкнутая линия. По ней болгаркой баллон разрезается на две части.
Из 16-миллиметровой арматуры сваривается решетка, которая приваривается к нижней половине, после чего обе части баллона снова стыкуются.
В местах, предназначенных для петель, делаются надрезы. Затем там привариваются петли, и вырезается дверца. Такая же операция проводится и с поддувалом.
Остается обустроить дымоход. Для этого болгаркой срезается вентиль, а на его место приваривается металлическая труба, диаметр которой должен быть 80-90 мм. Дымоход врезается в систему гаражной вытяжки или выводится через стену наружу.
Из баллона
Из молочной фляги
Схема буржуйки из фляги
Металлический бидон – отличная вещь в хозяйстве, пригодная для хранения красок, моторных масел, горючего. Конструкция фляги идеально подходит для изготовления из нее печки-буржуйки, но в качестве отопительного прибора она окажется не настолько долговечной как хотелось бы, стенки у нее недостаточно толстые. С уверенностью можно сказать, что ее хватит на 2-3 сезона.
Как самостоятельного изготовления буржуйки нужно выполнить несколько операций.
Для начала надо разметить, а потом вырезать в нижней части бидона, почти у самого дна, отверстие для дымохода. В завершающей стадии работ труба прихватывается сваркой. Диаметр дымохода выбирается от 8 до 12 см. Удлиняется дымоход после того, как печь будет изготовлена и установлена.
Крышка бидона – это уже готовая дверца печи с удачной защелкой, в ней остается только просверлить несколько поддувальных отверстий, диаметр которых может быть 15-18 мм. Делается это в нижней части крышки.
Из уголка или обрезков труб изготавливаются 4 ножки равной длины, которые затем симметрично привариваются к нижней части бидона. Перед дверцей можно постелить металлический лист, чтобы случайно упавший уголек не попал на легковоспламеняющийся материал.
Ручки фляги – удобная штука для переноски буржуйки с места на место, взявшись за них можно легко вытряхнуть накопившуюся в печке золу. Именно для этой операции дымоход лучше сделать разъемным.
Ну, вот и все, остается только испытать новую печку.
Установка

Использование буржуек, сделанных в домашних условиях, равно как и любых других отопительных установок, требует четкого соблюдения техники безопасности. Изначально следует осуществить выбор места для установки буржуйки. Этот агрегат, как показывает практика, лучше устанавливать в углу, а именно возле стен, противоположных по расположению к воротам гаража.
Не устанавливайте буржуйку ближе чем на 1,5 м к месту расположения автомобиля. Стоит учесть, что все быстровоспламеняющиеся материалы и изделия должны быть расположены в удалении от буржуйки также минимум на 1,5 м.
Печку лучше обложить со всех сторон кирпичными стенками. Так, будет исключена вероятность прикосновения к раскаленной печи, а также будет аккумулироваться тепло, вырабатываемое от ее топки. Таким образом, вы увеличите КПД устройства в несколько раз.
Увеличение КПД печи
Если стены гаража выполнены из дерева, то между ними и печкой должно быть определенное расстояние, а именно не меньше 100 см. Кроме того, во избежание воспламенения постройки, стены возле буржуйки следует обложить асбестовыми листами/кирпичом или иными огнеупорными материалами.
В качестве основания под буржуйку можно использовать лист из стали, имеющий толщину 1–2 см. Еще вариант – залейте бетонную стяжку. Благодаря этим действиям вы сможете предотвратить распространение огня, если вдруг из топки выпадут угольки/искры и т. д.
Для использования буржуйки в гараже следует предварительно сделать в нем качественную приточную вентиляцию. Свежий воздух должен поступать сюда в достаточном объеме, что обеспечит нормальное горение огня. В качестве вентиляции вполне может служить небольшой зазор между землей и гаражными воротами. В противном случае вам придется делать специальный канал для своевременного притока воздуха в гараж, что не очень выгодно с экономической точки зрения.
Буржуйка сильно раскаляется при горении в ее топке огня, поэтому нельзя оставлять около нее легковоспламеняющиеся материалы, такие как древесина, масла и смазки, бензин и т. д. Это может привести к катастрофе.
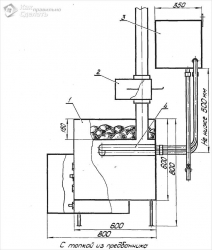
С конфоркой
Если оснастить буржуйку баком для воды, то печь можно будет использовать для ее подогрева. Установив на ней конфорки, у вас будет возможность осуществлять также подогрев еды.
На всю работу по изготовлению печи-буржуйки уйдет не более 2 часов, а радоваться результатам своего труда можно будет несколько сезонов.
Видео
Удачный пример создания буржуйки из подручных средств в видеоформате:
Чертежи
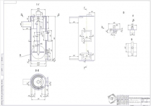
Предложенные нами чертежи и схемы помогут вам разобраться в принципе изготовления буржуйки для обогрева гаража:
Схема ракетной буржуйки
Схема-чертеж буржуйки из газового баллона
Схема буржуйки двойного дожига
Пиролизная























